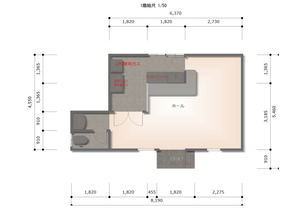
賃店舗 JR常磐線 岩沼駅まで徒歩38分の立地です。飲食店可です。トイレ、プロパンガス、エアコン、駐車場空5台ご見学の際はお気軽にご連絡ください。
賃店舗 亘理郡逢隈中泉字本木4-2 賃料100,000円 new
|
|
| 所在地 | 宮城県亘理郡亘理町字本木 (仮称)カフェ武澤 |
|---|---|
| 交通 | JR常磐線 岩沼駅 徒歩38分 |
| 築年月 | 新築/中古 | 中古 | |
|---|---|---|---|
| 面積 | 39.66m² | 計測方式 | |
| バルコニー | 向き | 西 | |
| 建物階数 | 地上1階 | 部屋階数 | 1階 |
| 建物構造 | 木造 | ||
| 間取内容 |
|
||
| 住宅保険料 | 要 | ||
| 現況 | 空家 | 取引態様 | 仲介 |
| 駐車場 | 1台限定無料 | 引渡/入居時期 | 相談 |
| 周辺環境 | |||
| 設備・条件 | ガスコンロ トイレ専用 エアコン | ||
| 物件番号 | |||
| 特記事項 | ・仲介手数料 1.1ヶ月分 ・賃料振替手数料550円/月 年間更新料15000円/年 |
||
Loading...
※物件掲載内容と現況に相違がある場合は現況を優先と致します。
予約する
宮城県知事(15)第845号
亘理町 不動産 賃貸 アパート 売買 新築工事 リフォーム工事の事住まいの事なら 亘理土地開発有限会社
お問い合わせ 見学予約はこちらより(LINEチャット可)
住所 宮城県亘理郡亘理町字上浜街道92-8
TEL0223-34-1154 FAX0223-34-2681








