売土地 亘理郡山元町 面積201.66㎡(61坪) 180万円 180万円 201.66m² 物件の詳細を見る 価格 180万円 売地 坪単価2.95万円 所在地 宮城県亘理郡山元町 山寺字北坪路 山元町北坪路 交通 徒歩12分 バス(山下駅南) 面積 土地 201.66m² 建蔽率/容積率 70% / 200% 区画番号 現況 更地 物件番号 33 設備・条件 第3種区域(新築時道路レベルより50cmの土盛が必要)、上下水道完備
売土地 亘理町長瀞字鹿野50-8 土地面積:662.79㎡(200.4坪)一部農地(畑)にて売買(実際畑使用条件)農地部分:331.73㎡(100.3坪)550万円 550万円 662.79m² 物件の詳細を見る 価格 550万円 売地 坪単価2.75万円 所在地 宮城県亘理郡亘理町 長瀞字鹿野 亘理町長瀞字鹿野50-8 交通 JR常磐線 亘理駅 徒歩42分 面積 土地 662.79m² 建蔽率/容積率 70% / 200% 区画番号 現況 更地 物件番号 30 設備・条件 上水道引き込み後引き渡しPP20mm、別途水道加入金要、浄化槽設置要、農地転用要(売主)農地転用(一部畑使用)
売土地 亘理町長瀞字河原12-6、長峯1-60 面積260㎡(78.6坪)200万円 現況渡し! 200万円 260m² 物件の詳細を見る 価格 200万円 売地 所在地 宮城県亘理郡亘理町 長瀞字河原12-6他 亘理町長瀞字河原、長峯 交通 バス (長瀞ガーデン 停歩2分) 面積 土地 260m² 建蔽率/容積率 70% / 200% 区画番号 現況 更地 物件番号 24 設備・条件 公営水道 排水下水 現況渡し
売土地 亘理町長瀞字河原39-9、39-17 土地面積 815㎡(246.5坪)630万円 現況渡し!! 630万円 815m² 物件の詳細を見る 価格 630万円 売地 坪単価2.56万円 所在地 宮城県亘理郡亘理町 長瀞字河原 長瀞字河原39-9、39-17 交通 バス 徒歩7分 (長瀞ガーデンバス停) 面積 土地 815m² 建蔽率/容積率 70% / 200% 区画番号 現況 更地 物件番号 34 設備・条件 文化財保護法、現況渡し、要上下水道引き込み、建物建築の際は、亘理町より公共物使用届の許可が必要※要件の変更により43条但し書き必要です。
亘理町 売土地 逢隈鹿島字吹田97番地一部 4342.7㎡(1313.66坪) 7224万円 開発分譲用地に最適! 7,224万円 4342.7m² 物件の詳細を見る 価格 7,224万円 売地 坪単価5.5万円 所在地 宮城県亘理郡亘理町 逢隈鹿島字吹田 逢隈鹿島吹田 交通 JR常磐線 亘理駅 徒歩13分 面積 土地 4342.7m² 建蔽率/容積率 60% / 200% 区画番号 現況 更地 物件番号 20 設備・条件 宅地分譲の際は開発許可要、上下水道引込要
売土地 亘理町逢隈高屋字保原 残り1区画 土地面積272.01㎡(82.28坪) 450万円 450万円 272.01m² 物件の詳細を見る 価格 450万円 売地 坪単価5.46万円 所在地 宮城県亘理郡亘理町 逢隈高屋字保原 逢隈高屋字保原 交通 JR常磐線 亘理駅 徒歩37分 面積 土地 272.01m² 建蔽率/容積率 70% / 200% 区画番号 現況 更地 物件番号 10 設備・条件 公営水道 排水下水 上下水道完備、私道(236㎡)持分1/8無償譲渡
売土地 亘理町逢隈十文字字大手 面積487.27㎡ 1000万円 売主負担で土留め工事後引渡 1,000万円 482.27m² 物件の詳細を見る 価格 1,000万円 売地 坪単価6.8万円 所在地 宮城県亘理郡亘理町 逢隈十文字字大手 逢隈十文字字大手33-1 交通 JR常磐線 亘理駅 徒歩31分 面積 土地 482.27m² 建蔽率/容積率 70% / 200% 区画番号 現況 更地 物件番号 27 設備・条件 プロパンガス 上水道は買主様で引込要となります。下水道は亘理町へ申請後2カ月後引込可能。文化財保護法により規制有
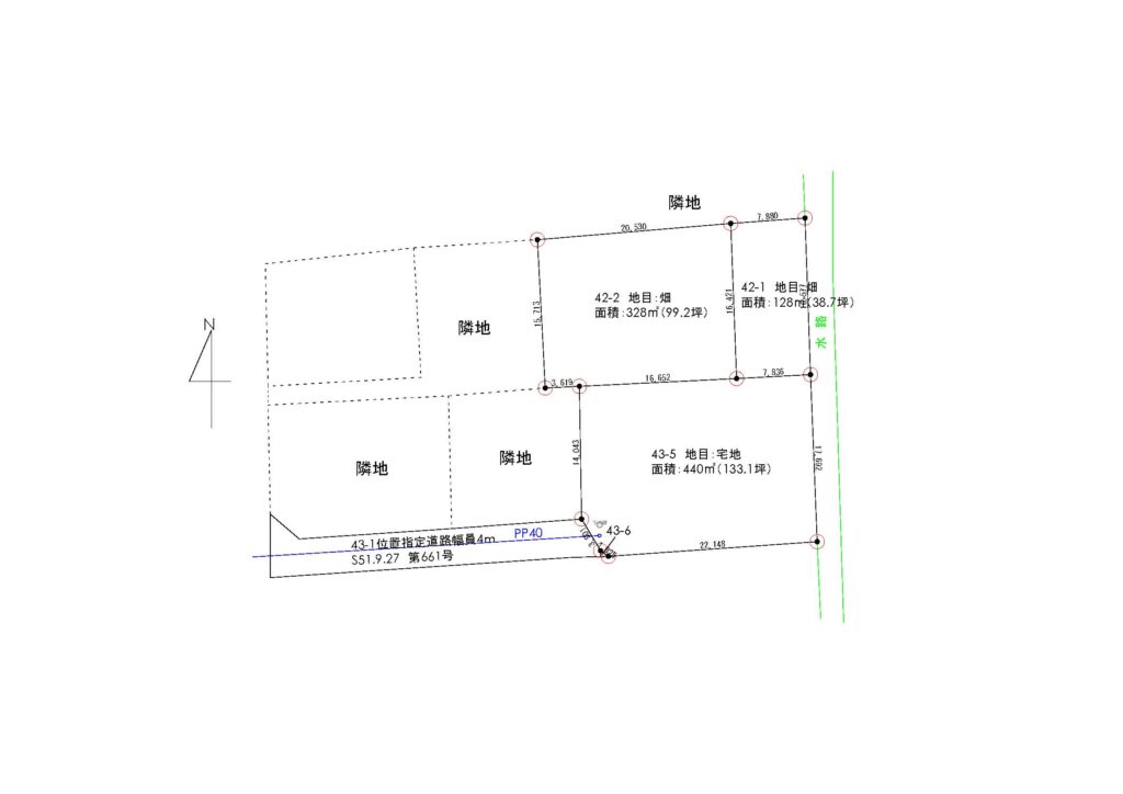
売土地 亘理町逢隈中泉字一里原158-1 680万円 土地面積:1132㎡(342.4坪)事業用地に最適です!! 680万円 1132m² 物件の詳細を見る 価格 680万円 売地 坪単価2万円 所在地 宮城県亘理郡亘理町 逢隈中泉字一里原158-1 亘理町逢隈中泉字一里原 交通 バス (水塚 乗4分) 面積 土地 1132m² 建蔽率/容積率 70% / 200% 区画番号 現況 更地 物件番号 5 設備・条件 農地法、要上水道引き込み、下水道無し浄化槽設置必要です。要亘理町開発協定
売土地 亘理町逢隈下郡字明神90-1、88-1、89 面積:907㎡(274.3坪)建売又は事業用のみ販売可能 1450万円 1,450万円 907m² 物件の詳細を見る 価格 1,450万円 売地 坪単価5.31万円 所在地 宮城県亘理郡亘理町 逢隈下郡字明神 亘理町逢隈下郡字明神土地 交通 JR常磐線 逢隈駅 徒歩3分 面積 土地 907m² 建蔽率/容積率 70% / 200% 区画番号 現況 更地 物件番号 12 設備・条件 上下水道無し(下水道区域外)前面道路に下水管あり、要上水道、要農業振興地域解除(4ヵ月)、農地法、入口乗り入れ24条工事要(道路側側溝敷設要)
売土地 亘理町荒浜字鳥の海11-11 さわやかな潮風を感じる場所 土地面積259.41㎡(78.4坪)235万円 235万円 259.41m² 物件の詳細を見る 価格 235万円 売地 所在地 宮城県亘理郡亘理町 荒浜字鳥の海 交通 バス 徒歩10分 (箱根田) 面積 土地 259.41m² 建蔽率/容積率 70% / 200% 区画番号 現況 更地 物件番号 55 設備・条件 公営水道 排水下水 売主にて境界確定、上下水道完備、他現況渡し、以前には建物有、平成23年東日本大震災津波浸水区域
売事業用 亘理町字龍円寺前1 土地面積:807㎡(244.1坪) 建物面積:60.86㎡(18.4坪)1240万円 1,240万円 60.86m² 物件の詳細を見る 価格 1,240万円 事務所 坪単価5.07万円 所在地 宮城県亘理郡亘理町 字龍円寺前 亘理町字龍円寺前 交通 JR常磐線 亘理駅 徒歩32分 築年月 1996/04 構造 軽量鉄骨 階建 地上 1階 部屋階数 面積 専有 60.86m² 土地 807m² 建蔽率/容積率 60% / 200% 部屋番号 現況 空家 物件番号 設備・条件 公営水道 排水浄化槽 上水道ありPP20mm、下水道区域外の為浄化槽設置要、前面道路非道路(但し43条2項第」2号申請で建築可)新築の申請費用は買主負担、売主負担に境界確定と建物表題登記を行います。
売土地 事業用地 亘理町字狐塚58-1他3筆 面積:2560㎡(774.4坪) 1540万円new 1,540万円 2560m² 物件の詳細を見る 価格 1,540万円 売地 坪単価1.98万円 所在地 宮城県亘理郡亘理町 字狐塚 亘理町字狐塚 交通 JR常磐線 亘理駅 徒歩16分 面積 土地 2560m² 建蔽率/容積率 60% / 200% 区画番号 現況 更地 物件番号 45 設備・条件 排水下水 宅地造成盛土規制区域、農地法、景観法、航空法、要上水道(引き込み先は約67m先になります)、1000㎡以上になるので亘理町開発協定必要
売土地 亘理町字油田117-9 土地面積283.37㎡(85.7坪) 680万円 上下水道完備 現況渡し 680万円 283.37m² 物件の詳細を見る 価格 680万円 売地 坪単価7.9万円 所在地 宮城県亘理郡亘理町 字油田117-9 亘理町字油田 交通 JR常磐線 亘理駅 徒歩21分 面積 土地 283.37m² 建蔽率/容積率 60% / 200% 区画番号 現況 古屋あり 物件番号 31 設備・条件 公営水道 排水下水 現況渡し 水道VP13mmです。20mmとする場合は買主負担となります。
売土地 亘理町字桜小路14の一部 現況渡し! 面積:634.50㎡(191.9坪)1750万円 境界売主負担(事業用地) 1,750万円 634.50m² 物件の詳細を見る 価格 1,750万円 売地 坪単価9.12万円 所在地 宮城県亘理郡亘理町 字桜小路 亘理町字桜小路14一部 交通 JR常磐線 亘理駅 徒歩13分 面積 土地 634.50m² 建蔽率/容積率 60% / 200% 区画番号 現況 古屋あり 物件番号 4 設備・条件 排水下水 上水道引き込み分水可、景観法、倉庫あり現況渡し内部残地物も現況、境界確定・分筆(売主負担)下水道引き込み要(西側道路より)
売土地 亘理町字桜小路42-10 土地面積205.29㎡(62.1坪)710万円 710万円 205.29m² 物件の詳細を見る 価格 710万円 売地 坪単価11.44万円 所在地 宮城県亘理郡亘理町 字桜小路 交通 JR常磐線 亘理駅 徒歩11分 面積 土地 205.29m² 建蔽率/容積率 60% / 200% 区画番号 現況 更地 物件番号 18 設備・条件 公営水道 排水下水 境界明示の上引渡し、上下水道(但しVP20mm)現地堀削必要